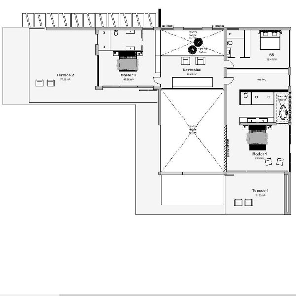
The Crescendo House is an L-shaped house that focuses the view in two directions, south and west, while allowing for 180 degree views in the living areas and master suite. Panoramic, floor-to-ceiling sliding doors using extra thin but sturdy frames allow minimal interruption of the views.



